手 機:19924390438
郵 箱:market@gdhuanmei.com
電 話:020-85681020(華南)
網 址:www.zztyhg.com
地 址:廣州市番禺區番禺大道北555號天安科技園

項目簡介

項目名稱:氨基酸含鹽廢水處理項目
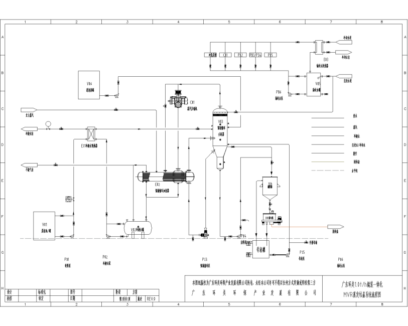
設計能力:1T/H撬裝一體化MVR蒸發結晶系統
客戶單位:廣東麗臣奧威實業有限公司
設計單位:廣東環美環保產業發展有限公司
物料情況
進水水質

方案設計

蒸發工藝簡介
蒸發系統原理介紹
強制循環蒸發工藝
強制循環蒸發器用于避免在加熱面上因沸騰形成結垢或產生結晶。為此,蒸發器中的的流動速度必須高。溶液在設備內的循環主要依靠外加動力(強制循環泵)所產生的強制流動。原料液由循環泵自下而上打入,沿加熱室向上流動。當循環液體流過熱交換器時被加熱,然后在分離器的壓力降低時部分蒸發,蒸汽和料液含物在蒸發室分開,蒸汽由上部排出,料液落下,經圓錐形底部被循環泵吸入,再進入加熱室,繼續循環。
?強制循環蒸發器具有以下優點:




服務熱線
020-85681020(華南)
郵箱:market@gdhuanmei.com
聯系人:周經理19924390438
研發中心:廣州市番禺區番禺大道北555號天安總部中心1號樓9層
生產基地:廣東省韶關市湞江區獅塘路39號

掃一掃,關注環美